ハイサッシのコンビネーションと木目調の外壁がアクセントのコンセプトデザイン住宅です♪
| 価格(万円) | 3,230万円 |
|---|---|
| 物件所在地 | 石川県金沢市粟崎町2丁目282番1 |
| 間取り | 3LDK+シューズクローク+ウォークインクローゼット |
| 土地面積 | 154.99m² (46.88坪) |
| 建物面積 | 101.27m² (30.63坪) |
| 校区 | 粟崎小学校 / 港中学校 |
| 建築年月 | 2025年7月 (築5ヶ月) |
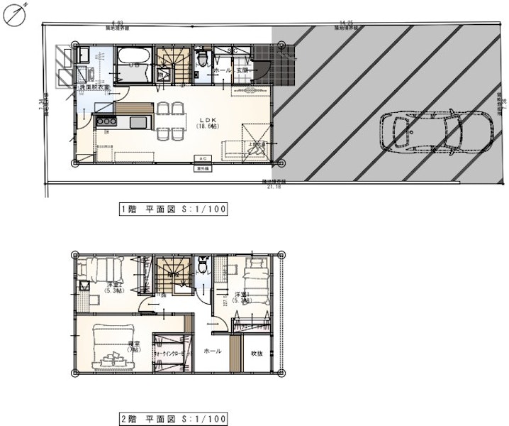
【3LDK+シューズクローク+ウォークインクローゼット】
■18.6帖のLDKに吹抜があることで帖数以上の開放感を感じられる【 LDK+吹抜設計】
■LDKからもキッチンからも動線が確保された3.5帖のランドリールーム【家事ラク動線】
■ダイニング・キッチンの天井の一部を下げた部分に木目調のアクセント【おしゃれな下がり天井】
■樹脂フレームとLow-E複層ガラスで快適な室内環境を実現した【高性能樹脂サッシAPW330】
■地震や台風の力が端部集中するのを壁全体で力を受け止め一部にかかる負担が軽減【EXハイパー】
■雨の日に鍵を探すことなく、ドアノブに触れるだけで簡単開閉【玄関ドア ポケットキー】
間取り図
キッチンを中心に水廻りを周遊できる家事ラク動線の住まいです♪
区画図
前面に2台分の駐車スペースがあります♪
車種によては3台も可能です。
石川県金沢市粟崎町2丁目282番1
| 物件名 | 金沢市粟崎町2丁目分譲住宅A棟 |
|---|---|
| 交通 | 北鉄バス「粟崎4丁目」バス停まで徒歩3分 |
| 総戸数/販売戸数 | 1戸 / 1戸 |
| 用途地域 | 第二種中高層住居専用地域 |
| 地目 | 宅地 |
| 私道負担・道路 | 私道負担:なし 道路幅:5.22m(北東側) |
| 構造・工法 | 木造在来工法 |
| 建ぺい率・容積率 | 建ぺい率:60% 容積率:200% |
| 性能 | オール電化, 省エネ給湯器, 24時間換気システム |
| 駐車場 | 駐車場2台可 |
| 電気/ガス | 北陸電力(他の小売電力事業者の選択も可能です。)/オール電化(エコキュート仕様) |
| キッチン | システムキッチン, 対面式キッチン, パントリー, IHクッキングヒーター, 食器洗乾燥機 |
| 飲水/排水 | 市営水道 / 公共下水道 |
| 建物の特徴 | バリアフリー, 収納が多い, 家事ラク動線, ウオークインクローゼット, シューズインクローゼット, サンルームあり, 書斎・ワークスペース |
| その他 | 仲介手数料なし |
| 補助対象 | 子育てグリーン住宅支援事業 |
| 備考・特記事項 | 子育てグリーン住宅支援事業40万円対象物件です。 |
| 販売スケジュール | 販売中 |
| 入居時期 | 要相談 |
| 土地の権利形態 | 所有権 |
| 取引態様 | 売主 |
| 現況 | 建築工事中 |
| 建物状況 | 建築工事中 |
| 情報提供日 | 2025年12月07日 |
|---|---|
| 取引条件有効期限 | 2025年12月21日 |
| 会社名 | 株式会社リビングスペース |
|---|---|
| 住所 | 石川県野々市市御経塚2丁目260 |
| TEL | 076-259-6718 |
| 免許/所属団体/資格 | 宅建業免許/国土交通大臣(2)第9771号、建設業許可/国土交通大臣(般-3)第28245号 |
| 営業時間 | 9:00~18:00 |
| 定休日 | 日曜 |
リビングスペース
リビングスペース
リビングスペース