【A棟:画像右】
シックなダークカラーを基調とし、自然素材の質感を生かしたタイル調の外壁材をアクセントに用いた、ソリッドデザイン住宅です。
【B棟:画像左】
洗練されたシンプルなホワイトカラーを基調とし、自然素材の質感を生かしたソリッドタイル調の外壁材をアクセントに用いた上質で高級感ある外観デザイン。
| 価格(万円) | 3,460万円 |
|---|---|
| 物件所在地 | 石川県小松市桜木町5番2 |
| 間取り | 3LDK+シューズクローク+ウォークインクローク |
| 土地面積 | 203.55 〜 203.71m² (61.57 〜 61.62坪) |
| 建物面積 | 101.0 〜 101.01m² (30.55 〜 30.55坪) |
| 校区 | 芦城小学校 / 芦城中学校 |
| 建築年月 | 2025年12月予定 |
【A棟】多彩な収納空間が子育て中でも自然と片づけられる暮らしを実現できる住まいです♪
【B棟】木目調のぬくもりに包まれた、解放感あふれる上質な空間のある住まい♪
■ 吹抜があることで明るく開放的なLDKになり、帖数以上の広がりを感じる【吹抜設計】
■ 洗面台をあえてLDKの独立した空間に設置。家族みんながストレスフリーで使用できる【独立型洗面化粧台】
■ 樹脂フレームとLow-E複層ガラスで国内最高レベルの断熱性能を実現した【高性能樹脂サッシAPW330】
■ ウィルス、菌、汚れ、匂いを除去するエアーウォッシュ機能付きの【エアーウォッシュフローリング】
■ 大地震が来ても安心して住み続けられる耐震等級3相当の強さと安心【耐震等級3相当】
■ 玄関ドアのノブに触れるだけで簡単開閉が可能な【ポケットキー】
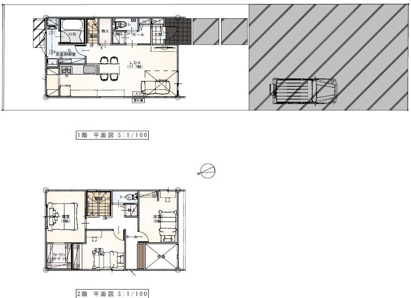
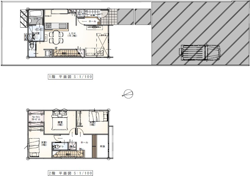
間取り図
【A棟】
キッチン横の大きなパントリーや洗面脱衣室の収納棚、玄関ホールのクローゼットなど多彩な収納空間が
子育て中でも自然と片づけられる暮らしを実現できる住まいです♪
【B棟】
木目調のぬくもりに包まれた、解放感あふれる上質な空間のある住まい♪
区画図
前面に車3台分の駐車スペースを確保しています。
※車種、駐車方法によっては4台以上可能です。
【A棟:敷地全体写真(南側から撮影)】
・前面道路融雪付き
・幅員5.08m
【B棟:敷地全体写真(南西側から撮影)】
・前面道路融雪付き
・幅員5.08m
石川県小松市桜木町5番2
| 物件名 | 小松市桜木町分譲住宅AB棟 |
|---|---|
| 交通 | IRいしかわ鉄道小松駅/1400m(徒歩18分) |
| 総戸数/販売戸数 | 2戸 / 2戸 |
| 用途地域 | 準住居地域、第二種住居地域 |
| 地目 | 宅地 |
| 私道負担・道路 | 私道負担:なし 道路幅:5.08m(南側) |
| 構造・工法 | 木造在来工法 |
| 建ぺい率・容積率 | 建ぺい率:60% 容積率:200% |
| 性能 | オール電化, 省エネ給湯器, 24時間換気システム, ZEH住宅 |
| 駐車場 | 駐車場3台可 |
| 電気/ガス | 北陸電力(他の小売電力事業者の選択も可能です。)/オール電化(エコキュート仕様) |
| キッチン | システムキッチン, 対面式キッチン, パントリー, IHクッキングヒーター, 食器洗乾燥機 |
| 飲水/排水 | 市営水道 / 公共下水道 |
| 建物の特徴 | 収納が多い, 家事ラク動線, ウオークインクローゼット, シューズインクローゼット, 浴室乾燥機, サンルームあり, 書斎・ワークスペース |
| その他 | 仲介手数料なし |
| 補助対象 | 子育てグリーン住宅支援事業 |
| 備考・特記事項 | 子育てグリーン住宅支援事業40万円対象物件です。
|
| 入居時期 | 要相談 |
| 土地の権利形態 | 所有権 |
| 取引態様 | 売主 |
| 現況 | 建築工事中 |
| 建物状況 | 建築工事中 |
| 情報提供日 | 2025年12月07日 |
|---|---|
| 取引条件有効期限 | 2025年12月21日 |
| 会社名 | 株式会社リビングスペース |
|---|---|
| 住所 | 石川県野々市市御経塚2丁目260 |
| TEL | 076-259-6718 |
| 免許/所属団体/資格 | 宅建業免許/国土交通大臣(2)第9771号、建設業許可/国土交通大臣(般-3)第28245号 |
| 営業時間 | 9:00~18:00 |
| 定休日 | 日曜 |
リビングスペース
リビングスペース
リビングスペース