A棟:画像左
小幅の板を重ね張りしたような外壁をベースに柔らかなグレイッシュの吹付とシャープなハイサッシが映える上質なモダンデザイン住宅。
B棟:画像右
フラットデザインのブラックカラーの外壁を基調に、吹付材と天然木が上質な素材感を織りなすクールモダンな外観デザインです。
| 価格(万円) | 3,280万円 |
|---|---|
| 物件所在地 | 石川県金沢市山科2丁目68番2、68番4 |
| 間取り | 3LDK+シューズクローク+ウォークインクローゼット(B棟:+ファミリークローゼット) |
| 土地面積 | 119.33 〜 119.37m² (36.09 〜 36.1坪) |
| 建物面積 | 101.01 〜 105.71m² (30.55 〜 31.97坪) |
| 校区 | 富樫小学校 / 高尾台中学校 |
| 建築年月 | 2026年3月予定 |
A棟:ライフタイルに合わせて最適な収納を備えた家事・育児を支える家
B棟: 「洗う・干す・仕舞う」が1階で完結する家事ラク動線の家
■ 南側の吹抜から自然光がたっぷり差し込み、暮らしに心地よい解放感をもたらしてくれる【吹抜設計】
■ 樹脂フレームとLow-E複層ガラスで国内最高レベルの断熱性能を実現した【高性能樹脂サッシAPW330】
■ ウィルス、菌、汚れ、匂いを除去するエアーウォッシュ機能付きの【エアーウォッシュフローリング】
■ 大地震がきても安心して住み続けられる強さと安心を備えた住まい【耐震等級3相当】
■ 玄関ドアのノブに触れるだけで簡単開閉が可能な【ポケットキー】
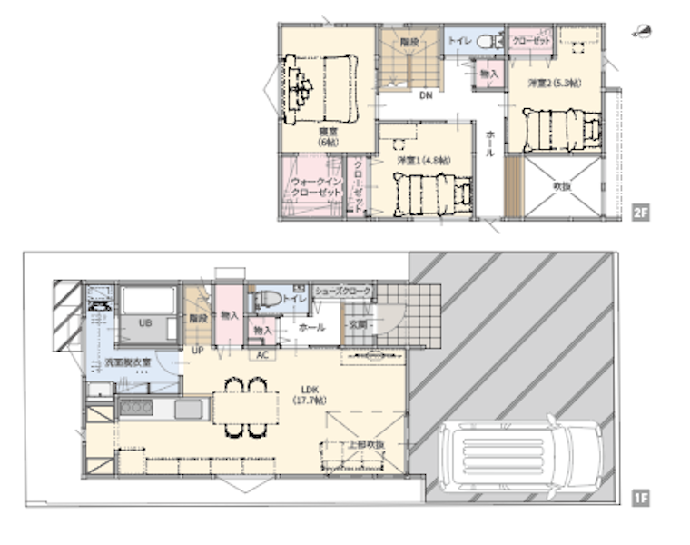
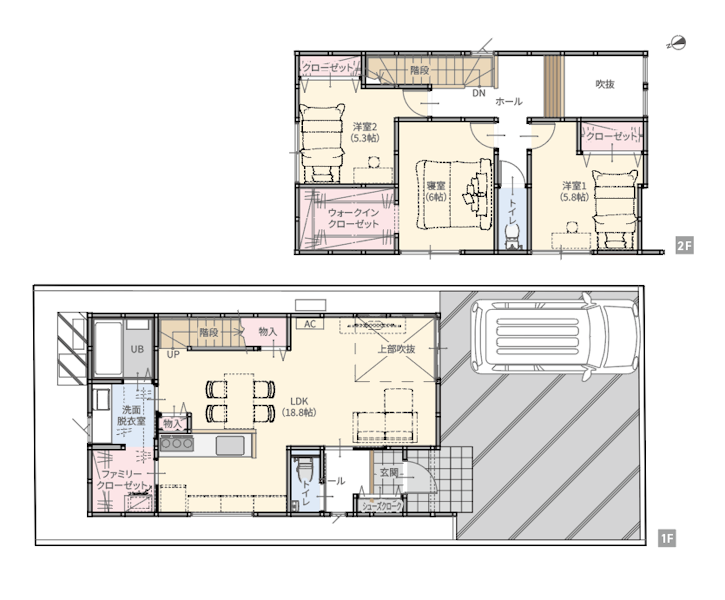
間取り図
A棟:間取り図
パントリーや脱衣室の収納棚、階段下の収納で片付けしやすい暮らしを実現。ライフタイルに合わせて最適な収納を備えた家事・育児を支える家です。
B棟:間取り図
1階のサンルームとファミリークローゼットが隣接し、洗う・干す・仕舞うが完結する家事ラク動線です。
区画図
前面に2台分の駐車スペースがあります。
※車種によっては縦列駐車にて3台可能な寸法です。
石川県金沢市山科2丁目68番2、68番4
| 物件名 | 金沢市山科2丁目分譲住宅AB棟 |
|---|---|
| 交通 | 北鉄バス 円光寺バス停 / 650m(徒歩9分) |
| 総戸数/販売戸数 | 2戸 / 2戸 |
| 用途地域 | 第一種中高層住居専用地域 |
| 地目 | 宅地 |
| 私道負担・道路 | 私道負担:なし 道路幅:6.78m(南側) |
| 構造・工法 | 木造在来工法 |
| 建ぺい率・容積率 | 建ぺい率:60% 容積率:200% |
| 性能 | オール電化, 省エネ給湯器, 24時間換気システム |
| 駐車場 | 駐車場2台可 |
| 電気/ガス | 北陸電力(他の小売電力事業者の選択も可能です。)/オール電化(エコキュート仕様) |
| キッチン | システムキッチン, 対面式キッチン, パントリー, IHクッキングヒーター, 食器洗乾燥機 |
| 飲水/排水 | 市営水道 / 公共下水道 |
| 建物の特徴 | バリアフリー, 家事ラク動線, ウオークインクローゼット, シューズインクローゼット, 浴室乾燥機, サンルームあり, 書斎・ワークスペース |
| その他 | 仲介手数料なし |
| 補助対象 | 子育てグリーン住宅支援事業 |
| 備考・特記事項 | 子育てグリーン住宅支援事業40万円対象物件です。 |
| 販売スケジュール | 販売中 |
| 入居時期 | 要相談 |
| 土地の権利形態 | 所有権 |
| 取引態様 | 売主 |
| 現況 | 建築工事中 |
| 建物状況 | 建築工事中 |
| 情報提供日 | 2025年12月13日 |
|---|---|
| 取引条件有効期限 | 2025年12月27日 |
| 会社名 | 株式会社リビングスペース |
|---|---|
| 住所 | 石川県野々市市御経塚2丁目260 |
| TEL | 076-259-6718 |
| 免許/所属団体/資格 | 宅建業免許/国土交通大臣(2)第9771号、建設業許可/国土交通大臣(般-3)第28245号 |
| 営業時間 | 9:00~18:00 |
| 定休日 | 日曜 |
リビングスペース
リビングスペース
リビングスペース