(A棟:画像左側)無機質なタイルの美しさと、吹付材の素材ならではのぬくもりが織りなす外観デザインです。
| 価格(万円) | 3,690万円 |
|---|---|
| 物件所在地 | 石川県野々市市押野7丁目97番1 |
| 間取り | 3LDK+シューズクローク+ウォークインクローゼット |
| 土地面積 | 150.77m² (45.6坪) |
| 建物面積 | 104.12m² (31.49坪) |
| 校区 | 館野小学校 / 布水中学校 |
| 建築年月 | 2026年9月予定 |
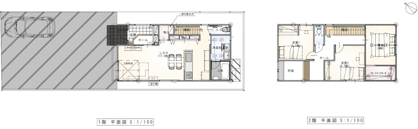
【3LDK+シューズクローク+ウォークインクローゼット】
■ LDKまわりで必要なモノに限らずパントリーとしての役割も兼ね備え、階段下の大型収納も含めるとモノがしっかりと仕舞える【集中型収納スタイル】
■ ゆとりある洗面脱衣室で洗濯物を干すスペースも確保し効率の良い家事動線が魅力【家事ラク動線】
■ 吹抜があることで明るく開放的なLDKになり、帖数以上の広がりを感じる【吹抜設計】
■ 樹脂フレームとLow-E複層ガラスで国内最高レベルの断熱性能を実現した【高性能樹脂サッシAPW330】
■ ウィルス、菌、汚れ、匂いを除去するエアーウォッシュ機能付きの【エアーウォッシュフローリング】
■ 大地震が来ても安心して住み続けられる強さと安心を備えた住まいを実現【耐震等級3相当】
■ 玄関ドアのノブに触れるだけで簡単開閉が可能な【ポケットキー】
間取り図
ライフスタイルに合わせて最適な収納を備えた家事・育児を支える住まいです。
区画図
前面に車4台分の駐車スペースを確保しています。
敷地全体(北西側から撮影)
敷地全体(北側から撮影)
前面道路(北側から撮影)幅員:6.0m+歩道4.5m
石川県野々市市押野7丁目97番1
| 物件名 | 野々市市押野7丁目分譲住宅A棟 |
|---|---|
| 交通 | 北陸鉄道石川線「押野駅」/1000m(徒歩13分) |
| 総戸数/販売戸数 | 1戸 / 1戸 |
| 用途地域 | 第二種住居地域 |
| 地目 | 宅地 |
| 私道負担・道路 | 私道負担:なし 道路幅:6.0m(西側)+歩道4.5m |
| 構造・工法 | 木造在来工法2階建 |
| 建ぺい率・容積率 | 建ぺい率:60% 容積率:200% |
| 性能 | オール電化, 省エネ給湯器, 24時間換気システム, ZEH住宅 |
| 駐車場 | 駐車場4台以上 |
| 電気/ガス | 北陸電力(他の小売電力事業者の選択も可能です。)/オール電化(エコキュート仕様) |
| キッチン | システムキッチン, 対面式キッチン, パントリー, IHクッキングヒーター, 食器洗乾燥機 |
| 飲水/排水 | 市営水道 / 公共下水道 |
| 建物の特徴 | バリアフリー, 収納が多い, 家事ラク動線, ウオークインクローゼット, シューズインクローゼット, 浴室乾燥機, サンルームあり, 書斎・ワークスペース |
| その他 | 仲介手数料なし |
| 補助対象 | みらいエコ住宅2026事業 |
| 備考・特記事項 | ※上下水道負担金770,000円(税込)別途必要です。
|
| 販売スケジュール | 販売中 |
| 入居時期 | 要相談 |
| 土地の権利形態 | 所有権 |
| 取引態様 | 売主 |
| 現況 | 建築工事中 |
| 建物状況 | 建築工事中 |
| 情報提供日 | 2026年04月25日 |
|---|---|
| 取引条件有効期限 | 2026年05月31日 |
| 会社名 | 株式会社リビングスペース |
|---|---|
| 住所 | 石川県野々市市御経塚2丁目260 |
| TEL | 076-259-6718 |
| 免許/所属団体/資格 | 宅建業免許/国土交通大臣(2)第9771号、建設業許可/国土交通大臣(般-3)第28245号 |
| 営業時間 | 9:00~18:00 |
| 定休日 | 日曜 |
リビングスペース
リビングスペース
リビングスペース