外観
| 価格(万円) | 3,190万円 |
|---|---|
| 物件所在地 | 富山県富山市富山市婦中町分田 |
| 間取り | 3SLDK(4SLDK対応) |
| 土地面積 | 180.72m² (54.66坪) |
| 建物面積 | 162.26m² (49.08坪) |
| 校区 | 鵜坂小学校 / 速星中学校 |
| 建築年月 | 2015年5月 (築10年10ヶ月) |
●開放感たっぷりの吹き抜けLDK ●小学校徒歩圏内♪商業施設が充実!人気の婦中町エリア ●ガレージから直接キッチンへ行けるので荷物が多くても持ち運びが楽!
●床暖房で冬もぽかぽか! ●インナーガレージで雨でも雪でも濡れずにおうちへ!
●長期優良住宅で安心
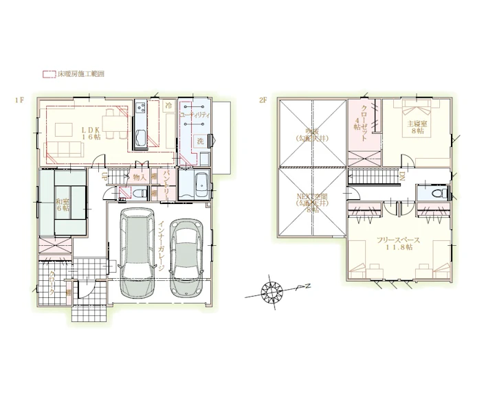
間取り図
富山県富山市富山市婦中町分田
| 物件名 | 富山市婦中町分田 |
|---|---|
| 交通 | 高山本線 婦中鵜坂駅 徒歩約21分
|
| 私道負担・道路 | 私道負担なし/南側 幅員:6.0m(公道)接面:11.2m、東側 幅員:6.0m(公道)接面:9.0m |
| 構造・工法 | 木造/2x4工法 |
| 建ぺい率・容積率 | 建ぺい率:50%、容積率:80% |
| 性能 | 長期優良住宅, オール電化, 24時間換気システム |
| 駐車場 | インナーガレージ |
| 電気/ガス | オール電化(エコキュート仕様)/ |
| キッチン | システムキッチン, 対面式キッチン, パントリー, IHクッキングヒーター, 食器洗乾燥機 |
| 飲水/排水 | 公営水道 / 公共下水 |
| 建物の特徴 | 収納が多い, 家事ラク動線, ウオークインクローゼット, シューズインクローゼット, 和室あり |
| 備考・特記事項 | ※入居後、Co.マチ維持管理会への加入が必要です。(12,000円/年) |
| 入居時期 | 要相談 |
| 土地の権利形態 | 所有権 |
| 取引態様 | 専任媒介 |
| 現況 | 居住中 |
| 建物状況 | 所有権 |
| 施工会社 | オスカーホーム施工 |
| 情報提供日 | 2026年03月15日 |
|---|---|
| 取引条件有効期限 |
| 会社名 | 株式会社OSCAR オスカー不動産 |
|---|---|
| 住所 | 富山県富山市山室226番地2 |
| TEL | 0120-220-138 |
| 免許/所属団体/資格 | 建設業許可登録/国土交通大臣許可(般ー6)第20784号、宅建取引業許可/国土交通大臣免許(5)第6895号、一級建築士事務所登録/富山県知事登録第(5)1661号、石川県知事登録第13667号、北陸不動産公正取引協議会加盟(富山・石川・福井) |
| 営業時間 | 10:00~18:00 |
| 定休日 | 年末年始 |
オスカー不動産 オスカーハウジングスクエア
オスカー不動産 オスカーハウジングスクエア
オスカー不動産 オスカーハウジングスクエア