【A棟】グレーを基調とした外壁に木目調のアクセントが映える重厚感のある外観デザインです。
| 価格(万円) | 2,890 〜 2,950万円 |
|---|---|
| 物件所在地 | 石川県かほく市木津ロ54番18、19 |
| 間取り | 3LDK+ファミリークローゼット+シューズクローク+ウォークインクローゼット(A棟は+納戸) |
| 土地面積 | 150.43 〜 150.49m² (45.5 〜 45.52坪) |
| 建物面積 | 104.57 〜 105.36m² (31.63 〜 31.87坪) |
| 校区 | 七塚小学校 / 河北台中学校 |
| 建築年月 | 2026年5月予定 |
【A棟】大型の納戸を設けており、収納が充実した住まい
【B棟】独立型の洗面化粧台でストレスなく使いやすい間取りの家
標準仕様
■高性能樹脂サッシAPW330
樹脂フレームとLow-E複層ガラスで、業界トップクラスの断熱性能により快適な室内環境を実現します。
■ウレタン吹付断熱
発泡することにより現場の形状にぴったりと密着し気密性が高く、自己接着力により断熱性能を維持します。
■玄関ドア ポケットキー
ドアノブに触れるだけで簡単開閉が可能です。
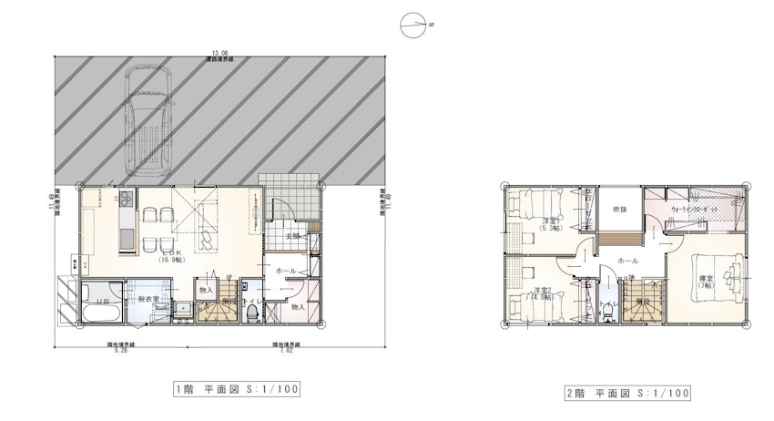
間取り図
【A棟】帰宅後にコートやお子様の保育園用のカバンなどが仕舞いやすい1階の納戸スペースが魅力の間取りです。独立型の洗面化粧台もご家族と来客の方がストレスなく使えるのも魅力です。
【B棟】キッチン横には、パントリーがあり食料品や米びつなどをすぐに収納できる家事ラク設計。また、LDKとあえて分けて設置した独立型の洗面化粧台もご家族と来客の方がストレスなく使えるのも魅力です。
区画図
全面に3台分の駐車スペースを確保しています。
石川県かほく市木津ロ54番18、19
| 物件名 | かほく市木津分譲住宅AB棟 |
|---|---|
| 交通 | JR七尾線 横山駅/400m(徒歩5分) |
| 総戸数/販売戸数 | 2戸 / 2戸 |
| 用途地域 | 準工業地域 |
| 地目 | 宅地 |
| 私道負担・道路 | 私道負担:なし 道路幅:6.0m(西側)、6.0m(南側) |
| 構造・工法 | 木造在来工法2階建て |
| 建ぺい率・容積率 | 建ぺい率:60% 容積率:200% |
| 性能 | オール電化, 省エネ給湯器, 24時間換気システム, ZEH住宅 |
| 駐車場 | 駐車場3台可 |
| 電気/ガス | 北陸電力(他の小売電力事業者の選択も可能です。)/オール電化(エコキュート仕様) |
| キッチン | システムキッチン, 対面式キッチン, IHクッキングヒーター, 食器洗乾燥機 |
| 飲水/排水 | 市営水道 / 公共下水道 |
| 建物の特徴 | 収納が多い, 家事ラク動線, ウオークインクローゼット, シューズインクローゼット, 浴室乾燥機, サンルームあり, 書斎・ワークスペース |
| その他 | 仲介手数料なし |
| 備考・特記事項 | 上下水道負担金税込66万円(別途) |
| 販売スケジュール | 販売中 |
| 入居時期 | 要相談 |
| 土地の権利形態 | 所有権 |
| 取引態様 | 売主 |
| 現況 | 建築工事中 |
| 建物状況 | 建築工事中 |
| 情報提供日 | 2026年04月30日 |
|---|---|
| 取引条件有効期限 | 2026年05月14日 |
| 会社名 | 株式会社リビングスペース |
|---|---|
| 住所 | 石川県野々市市御経塚2丁目260 |
| TEL | 076-259-6718 |
| 免許/所属団体/資格 | 宅建業免許/国土交通大臣(2)第9771号、建設業許可/国土交通大臣(般-3)第28245号 |
| 営業時間 | 9:00~18:00 |
| 定休日 | 日曜 |
リビングスペース
リビングスペース
リビングスペース