福井・石川・富山ではじめて家を建てる人のための、住宅情報サイト
掲載住宅会社 589 住宅イベント 341 建築実例 920 住宅写真 13,225

家づくりナビ

石川

株式会社セブンワークス

暖かさと暮らしやすさを叶えたいいとこどりの家

住宅性能を重視していたご主人とデザインを重視していた奥様が家づくりを託したのがセブンワークス。「標準スペックがUA値0.32、C値0.2と数値を出しているので分かりやすかったです。いくつか見た内見会で、私は性能の良さに納得し、妻はシンプルなデザインが気に入りました」とご主人。
8月末に入居し、2カ月ほど経ったが、エアコンを使ったのは数回程度。予想以上の断熱気密性に驚いているそう。「外が10℃でも室内は20℃をキープしています。寒いと感じたことがなく、家の中では二人とも半袖で過ごしています(笑)」。
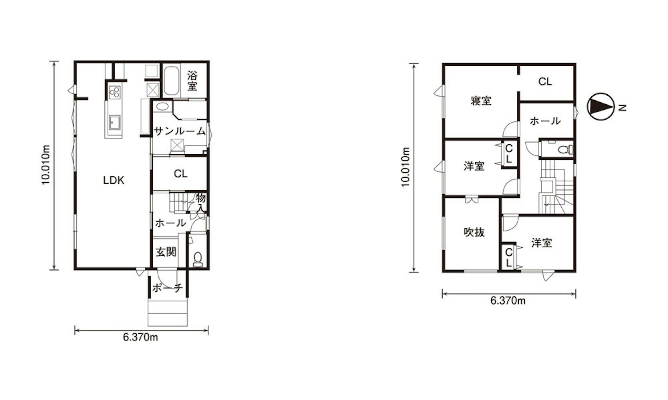
性能だけでなく、生活のしやすさも魅力。ご夫婦共にリモートワークが中心なため、1、2階にワークスペースをプラン。「各階に設けたので、お互いが仕事に集中することができます」と満足な様子。帰宅後、ファミリークロークを通って着替え、サンルームで手洗いをする帰宅動線も、とても使い勝手がいいそう。
太陽光パネルも搭載しているT邸。これから始まるゼロエネルギーの暮らしをご夫妻は楽しみにしている。

デザインテイスト

  • ナチュラルな雰囲気のLDK
    ナチュラルな雰囲気のLDK

    木とキーカラーの白で、ナチュラルな雰囲気のLDK。床はナラ、壁は漆喰と自然素材で仕上げている。

  • 自然光が注ぐ吹き抜け
    自然光が注ぐ吹き抜け

    吹き抜けに設けた2方向の窓から自然光が入り、明るいリビング。

  • ランニングコストを考えた家づくり
    ランニングコストを考えた家づくり

    トリプル樹脂サッシやダクトレスの熱交換型換気システムにより、エアコン1台で家全体の室温をキープ。

  • 料理がはかどるキッチン
    料理がはかどるキッチン

    キッチン奥のパントリーのおかげで、常に片付いた状態!

  • サンルーム横のファミリークローゼット
    サンルーム横のファミリークローゼット

    サンルーム隣にファミリークローゼットがあるので、しまうのもあっという間

  • サンルームで洗濯、干す、たたむが完結
    サンルームで洗濯、干す、たたむが完結

    洗濯、干す、たたむがサンルーム内で完結できるので、以前に比べて、かなり洗濯の時間が短くなった。

  • おこもり感のあるワークスペース
    おこもり感のあるワークスペース

    1階のダイニング奥に設置した主にご主人用のワークスペース。おこもり感がありながらも家族の気配を感じることができる。

  • 心地いい香りに包まれる玄関
    心地いい香りに包まれる玄関

    天井に能登ヒバを使い、木の香り漂う玄関。

  • 奥様用のワークスペース
    奥様用のワークスペース

    主に奥様が仕事で使用している2階のワークスペース。

  • 木の扉がアクセントの外観
    木の扉がアクセントの外観

    明るいグレーの塗り壁に、木の扉がアクセントになっている外観。

information

基本情報

種類 新築
価格帯

3000万円以上

※竣工当時の価格になります

延床面積 117.58m²(35.65坪)
家族構成 夫(28歳) 妻(27歳)
竣工年月 2022年8月
builder

この家を建てた住宅会社

会社名 株式会社セブンワークス
住所 石川県金沢市額新保1-450
会社の強み デザイン / 性能(高気密・高断熱) / 性能(災害に強い) / 性能(省エネ) / リノベーションができる
TEL 076-259-6590
営業時間 10:00~18:00
会社の基本情報をもっと見る
case

この会社の
他の建築実例を見る

建築実例をもっと見る
event

イベント情報

イベント情報をもっと見る