福井・石川・富山ではじめて家を建てる人のための、住宅情報サイト
掲載住宅会社 583 住宅イベント 308 建築実例 882 住宅写真 12,846

家づくりナビ

石川

LINX (リンク)

補助金をフル活用! 賢く叶えたエコな住まい

 断熱等級6、C値0・057の断熱気密性に加えて、太陽光発電を搭載するI邸。
ハイスペックな住まいが叶えられたのは、補助金の活用が大きい。

 国のGX志向型住宅補助金にはじまり、石川県の太陽発電設備普及促進事業・住まいの省エネ促進事業、かほく市の自然エネルギーシステム設置費補助金に、マイホーム取得奨励金と、利用できる補助金をすべて活用した総額は、なんと約320万円!

「おかげで、快適で、電気代も節約できる家になりました。色んな補助金をアドバイスしてくれたLINXさんには感謝しかありません」とIさん。

 ルーバーの天井が印象的な、ジャパンディテイストの住まいには、二人の夢がいっぱい。

「大画面のテレビでサッカー観戦を楽しみたい」、「ペットも飼ってみたいな」…。アパートでは叶わなかった暮らしを、エコな住まいが叶えていく。

UA値:0.4W/㎡・K
C値:0.057㎠/㎡

デザインテイスト

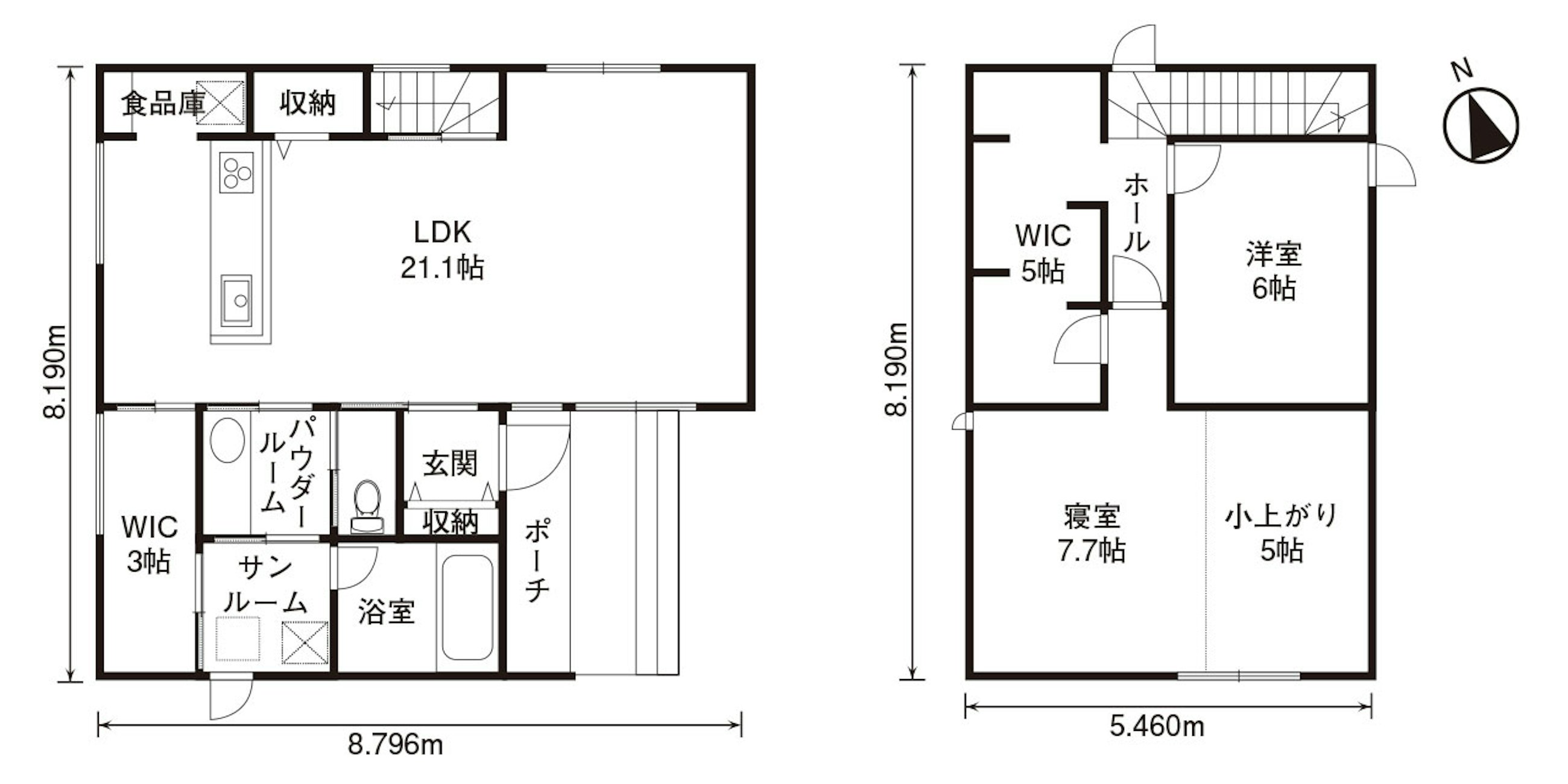
  • LDK
    LDK

    LDKを最大限広くするため、玄関ホールを省いた間取り。キッチンを中心に機能的な動線がプランされている。

  • リビング
    リビング

    リビングの天井はルーバー仕上げ。ルーバーから差し込む灯りと間接照明がおしゃれ。

  • キッチン
    キッチン

    パントリーで生活感を隠して、すっきりとしたキッチンに。外観と同じモスグリーンのアクセントウォールが、おしゃれ度を高めている。

  • 洗面所
    洗面所

    収納たっぷりの造作洗面台。新居は家全体の温度差が少ないので、パウダールームも快適。

  • WIC
    WIC

    1階の大型WICによって、暮らしの大半がワンフロアで完結できる。

  • 寝室
    寝室

    旅館のようなくつろぎが感じられる小上がりの寝室。

  • 外観
    外観

    特徴的なモスグリーンの外観。立体感のあるテクスチャーは、紫外線による劣化が少なく、きれいが長続きする。

information

基本情報

種類 新築
価格帯

2500〜2999万円

※竣工当時の価格になります

延床面積 104.6m²(31.64坪)
家族構成 夫(30代) 妻(20代)
竣工年月 2025年9月
builder

この家を建てた住宅会社

会社名 LINX株式会社
住所 石川県金沢市若宮町チ71-3
会社の強み デザイン / コストパフォーマンスが良い / 性能(高気密・高断熱) / アフターメンテナンス
TEL 076-254-0412
営業時間 9:00~18:00
定休日 無休
会社の基本情報をもっと見る
case

この会社の
他の建築実例を見る

建築実例をもっと見る
event

イベント情報

イベント情報をもっと見る