【イメージ図】ブラック×ブラウンのコントラストが映える、デザイン性の高い外観が魅力の一邸となっています。駐車は3台可能です♪
| 価格(万円) | 2,860万円 |
|---|---|
| 物件所在地 | 福井県福井市灯明寺3丁目915番1 |
| 間取り | 3LDK |
| 土地面積 | 124.81m² (37.75坪) |
| 建物面積 | 88.59m² (26.79坪) |
| 校区 | 明新小学校 / 灯明寺中学校 |
| 建築年月 | 2026年8月予定 |
◆光熱費高騰の今だからこそ!太陽光4.92kw標準装備で月々の光熱費を抑えられてお得!!
◆家事ラク動線3LDK+キッチン・2階ホール・各居室に物入で収納力◎
◆土地+建物+太陽光+外構+省エネエアコンが全てコミコミでこの価格!
【月々のお支払い目安】
月々63,860円
売電予想▲6,182円=実質負担57,678円
※売電率60%想定。発電量を保証するものではありません。
※月々売電予想額は初年度~4年目の目安です。
(5~10年目:月々売電予想2,060円/実質負担61,800円)
◆充実の周辺環境
・ハニー新鮮館灯明寺 徒歩約4分
・明新小学校 徒歩約12分
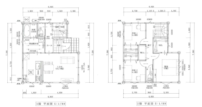
間取り図
LDKは家族が集まって楽しい時間を過ごすのに最適な空間。2階には、3つの居室が配置され、各居室CLを完備しており、衣類や小物の収納にも困りません。
ハニー新鮮館灯明寺
生活するのに必要な不可欠なスーパーが近くにあるのは便利ですね!
ファミリーマート福井舟橋新一丁目店
夜遅くでも何か欲しいものができたらすぐに買い物できます!
クスリのアオキ灯明寺店
処方箋から薬品まで多種多様な便利なドラッグストア!
福井市立明新小学校
通学が楽ちんですね♪
福井市立灯明寺中学校
友達との通学を十分に楽しめる距離ですね!
ゆりかご認定こども園
送り迎えも楽々!子育てと仕事が両立できます!
中藤島郵便局
郵送や振り込みなど、思い立ってすぐいける距離にあるので便利ですね!
福井銀行経田支店
仕事の行き帰りに行ける距離にあるのは便利ですね!
福井県福井市灯明寺3丁目915番1
| 物件名 | 【福井市灯明寺3丁目D棟】ZEH仕様の高断熱+太陽光パネル4.92kw搭載の新築一戸建て |
|---|---|
| 交通 | 京福バス「灯明寺」 徒歩約8分 |
| 総戸数/販売戸数 | 1戸 / 1戸 |
| 用途地域 | 第一種中高層住居専用地域 |
| 地目 | 宅地 |
| 私道負担・道路 | 北側 公道8.5m 接面11.6m、 東側 公道6.0m 接面10.1m |
| 構造・工法 | 木造軸組工法 |
| 建ぺい率・容積率 | 建ぺい率70% 容積率200% |
| 性能 | オール電化, 太陽光発電システム, 省エネ給湯器, 24時間換気システム, ZEH住宅 |
| 駐車場 | 駐車場3台可 |
| 電気/ガス | オール電化/オール電化 |
| キッチン | システムキッチン, 対面式キッチン, パントリー, IHクッキングヒーター, 食器洗乾燥機 |
| 飲水/排水 | 公営水道 / 本下水 |
| 建物の特徴 | 収納が多い, 家事ラク動線, ウオークインクローゼット, 浴室乾燥機 |
| その他 | 仲介手数料なし |
| 備考・特記事項 | ZEH補助金対象
|
| 入居時期 | 要相談 |
| 土地の権利形態 | 所有権 |
| 取引態様 | 売主 |
| 現況 | 建築中 |
| 建物状況 | 建築中 |
| 情報提供日 | 2026年01月24日 |
|---|---|
| 取引条件有効期限 | 2027年01月24日 |
| 会社名 | リーズナブルホーム 福井店 |
|---|---|
| 住所 | 福井県福井市高柳1丁目916番地 |
| TEL | 0776-50-7565 |
| 免許/所属団体/資格 | 宅建業/国土交通大臣(2)第9164号、一般建設業/国土交通大臣許可(般-4)第26634号、二級建築士事務所/福井県知事登録 第ろ-959号 |
| 営業時間 | 10:00~18:00 |
| 定休日 | 水曜 |
リーズナブルホーム 福井店
リーズナブルホーム 福井店
リーズナブルホーム 福井店