モダンなツートンカラーのシンプルでスタイリッシュなデザインに加え、駐車場は3台分のスペースが確保されており、駐車に困ることもなく、ご家族のライフスタイルに合わせてご利用いただけます!
| 価格(万円) | 2,790万円 |
|---|---|
| 物件所在地 | 福井県福井市大宮5丁目1210番2 |
| 間取り | 3LDK |
| 土地面積 | 120.78m² (36.53坪) |
| 建物面積 | 87.77m² (26.55坪) |
| 校区 | 日新小学校 / 藤島中学校 |
| 建築年月 | 2026年3月予定 |
◆ZEH仕様の高断熱で夏は涼しく・冬は暖かく年中快適♪
◆光熱費高騰の今だからこそ!太陽光4.92kw標準装備で月々の光熱費を抑えられてお得!
◆各居室収完備に加え、1階・2階ホール内に物入を設置でスッキリ空間♪
◆家事ラク導線の3LDKで暮らしやすい間取りの工夫が沢山!
◆土地+建物+太陽光+外構+省エネエアコンが全てコミコミでこの価格!
◆通勤・通学・買い物の利便性が高い充実の周辺環境
・京福バス「堀ノ宮」 徒歩約7分
・日新小学校 徒歩約5分
・藤島中学校 徒歩約5分
・ハニー食彩館大宮店 徒歩約7分
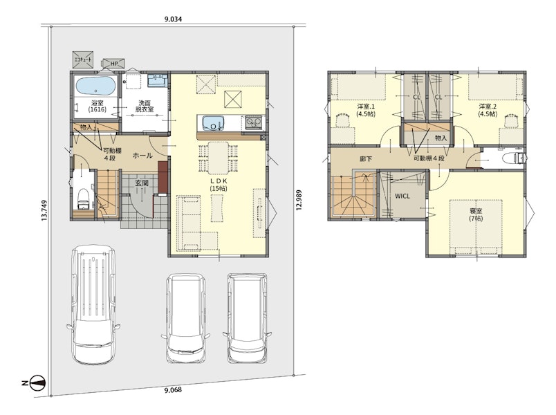
間取り図
15帖のLDKは家族が集まって楽しい時間を過ごすのに最適な空間です。キッチンは使いやすく、料理をしながらでも家族との会話を楽しむことができます◎
ハニー食彩館大宮店 徒歩約7分
ファミリーマート福井文京六丁目店 徒歩約9分
スギドラッグ堀ノ宮店 徒歩約7分
認定こども園花園幼稚園 徒歩約5分
福井市立日新小学校 徒歩約5分
福井市立藤島中学校 徒歩約5分
すこやか内科クリニック 徒歩約9分
福井文京六郵便局 徒歩約12分
福井県福井市大宮5丁目1210番2
| 物件名 | 【福井市大宮5丁目C棟】ZEH仕様の高断熱+太陽光パネル4.92kw搭載の新築一戸建て |
|---|---|
| 交通 | えちぜん鉄道「日華化学前駅」徒歩約7分
|
| 総戸数/販売戸数 | 1戸 / 1戸 |
| 用途地域 | 第一種住居地域 |
| 地目 | 宅地 |
| 私道負担・道路 | 西側 公道10.0m 接面9.0m |
| 構造・工法 | 木造軸組工法 |
| 建ぺい率・容積率 | 建ぺい率60% 容積率200% |
| 性能 | オール電化, 太陽光発電システム, 省エネ給湯器, 24時間換気システム, ZEH住宅 |
| 駐車場 | 駐車場3台可 |
| 電気/ガス | オール電化/オール電化 |
| キッチン | システムキッチン, 対面式キッチン, IHクッキングヒーター, 食器洗乾燥機 |
| 飲水/排水 | 公営水道 / 本下水 |
| 建物の特徴 | 収納が多い, 家事ラク動線, ウオークインクローゼット, 浴室乾燥機 |
| その他 | フラット35S適用, 仲介手数料なし |
| 補助対象 | 子育てグリーン住宅支援事業 |
| 備考・特記事項 | ZEH補助金対象※子育てグリーン住宅補助金との併用は不可
|
| 入居時期 | 要相談 |
| 土地の権利形態 | 所有権 |
| 取引態様 | 売主 |
| 現況 | 建築中 |
| 建物状況 | 建築中 |
| 情報提供日 | 2025年10月16日 |
|---|---|
| 取引条件有効期限 | 2025年12月31日 |
| 会社名 | リーズナブルホーム 福井店 |
|---|---|
| 住所 | 福井県福井市高柳1丁目916番地 |
| TEL | 0776-50-7565 |
| 免許/所属団体/資格 | 宅建業/国土交通大臣(2)第9164号、一般建設業/国土交通大臣許可(般-4)第26634号、二級建築士事務所/福井県知事登録 第ろ-959号 |
| 営業時間 | 10:00~18:00 |
| 定休日 | 水曜 |
リーズナブルホーム 福井店
リーズナブルホーム 福井店
リーズナブルホーム 福井店