福井・石川・富山ではじめて家を建てる人のための、住宅情報サイト
掲載住宅会社 589 住宅イベント 328 建築実例 928 住宅写真 13,347

家づくりナビ

富山

セキスイハイム中部

「ユニット工法」が叶える 年中快適で安全な暮らし

目指すのは最高品質の住まい 先進技術による家づくり

オススメポイント

  • 01 小屋裏スペース:平屋の暮らしにプラスαの楽しみをもたらす、秘密基地のようなスペース。趣味や子ども部屋として、ライフスタイルに合わせて自由に活用可能。
  • 02 収納計画:キッチンの横には大型パントリーを配し、日用品や食材をスマートに収納。生活感が出やすいLDKを常に美しく保つ。
  • 03 動線設計:玄関から水まわりにつながる帰宅動線上にWIC(ウォークインクローゼット)を設け、帰宅後だけでなく、外出の身支度にも便利。

セキスイハイム中部のモデルハウス(分譲住宅)ー富山県富山市ー

高い資産価値と防災力を重視した分譲地「ウォークヒルズ新高山」に建つモデルハウスです。新富山駅に近いという利便性がある反面、心配されるのが「音」の問題。ですが、セキスイハイムは確かな技術で、一歩室内に入れば電車の走行音も嘘のように消え去る住空間を叶えています。その秘密は、住まいの大半を工場で生産する「ユニット工法」にあります。ミリ単位の施工精度が隙間のない高気密な躯体を実現し、外の騒音を徹底的に遮断。「図書館並み」とも評される静かさが、住まいの質の高さを証明しています。

この住まいが提案するのは、将来を見据え、1階だけで生活が完結する「平屋のような暮らし」です。

生活空間を1階に集約し、回遊性のある動線で結ぶことで、ムダな動きがなく暮らせます。小屋裏は、趣味や子ども部屋として利用できます。そんなゆとりある設計を支えるのが、「耐震等級3(最高等級)」「断熱等級6」の住宅性能と、全室空調「快適エアリー」です。玄関から廊下、洗面所に至るまで、家中での温度差がない「温度のバリアフリー」が、一年を通して春のような心地よさを約束します。

太陽光発電と蓄電池を搭載し、万一の災害時でも自宅で安心して過ごせる「レジリエンス性」も確保。駅近の利便性と、静けさ、そして災害への強さ。あらゆるストレスから解放された、真に安らげるシェルターのような住まいです。

・全室空調「快適エアリー」:エアコンの露出がないノイズレスな空間を実現。足元から届く爽やかな空気が、LDK全体を春のような心地よさで満たしてくれる。

・キッチン:デザイン性と機能性を兼ね備えたキッチン。手元を隠すことで、生活感を見せず、広々としたスペースで作業がスムーズに行うことができる。

Builders Guide: セキスイハイム中部
目指すのは最高品質の住まい 先進技術による家づくり 組立から配線・断熱・外壁施工まで、住まいの大半を工場で生産し、現場で据え付ける鉄骨系と木質系の「ユニット工法」を採用。最新のテクノロジーを用いた家づくりが、設計通りの性能と品質、圧倒的な強さと快適さを叶える。大地震が発生したときも日常に近い生活が送れるレジリエンス性にも優れる。

施工エリア:愛知、岐阜、三重、石川、福井、富山
設立:1985年
スペック:耐震等級(3)、断熱等級(6)、長期優良住宅
保証・アフターサービス:入居後2年間の間に3回の定期点検を実施。30年長期保証制度、60年長期サポートシステムを採用。

【モデルハウス・展示場】
福井ハウジングパーク:福井県福井市大和田町21-12
ハイムギャラリーパーク新神田:石川県金沢市新神田4丁目30
ジュートピア富山展示場:富山県富山市西中野275

[Data] 物件概要
所在地:富山県富山市下新北町
価格:5,930万円(建物4,607万円、土地1,323万円)
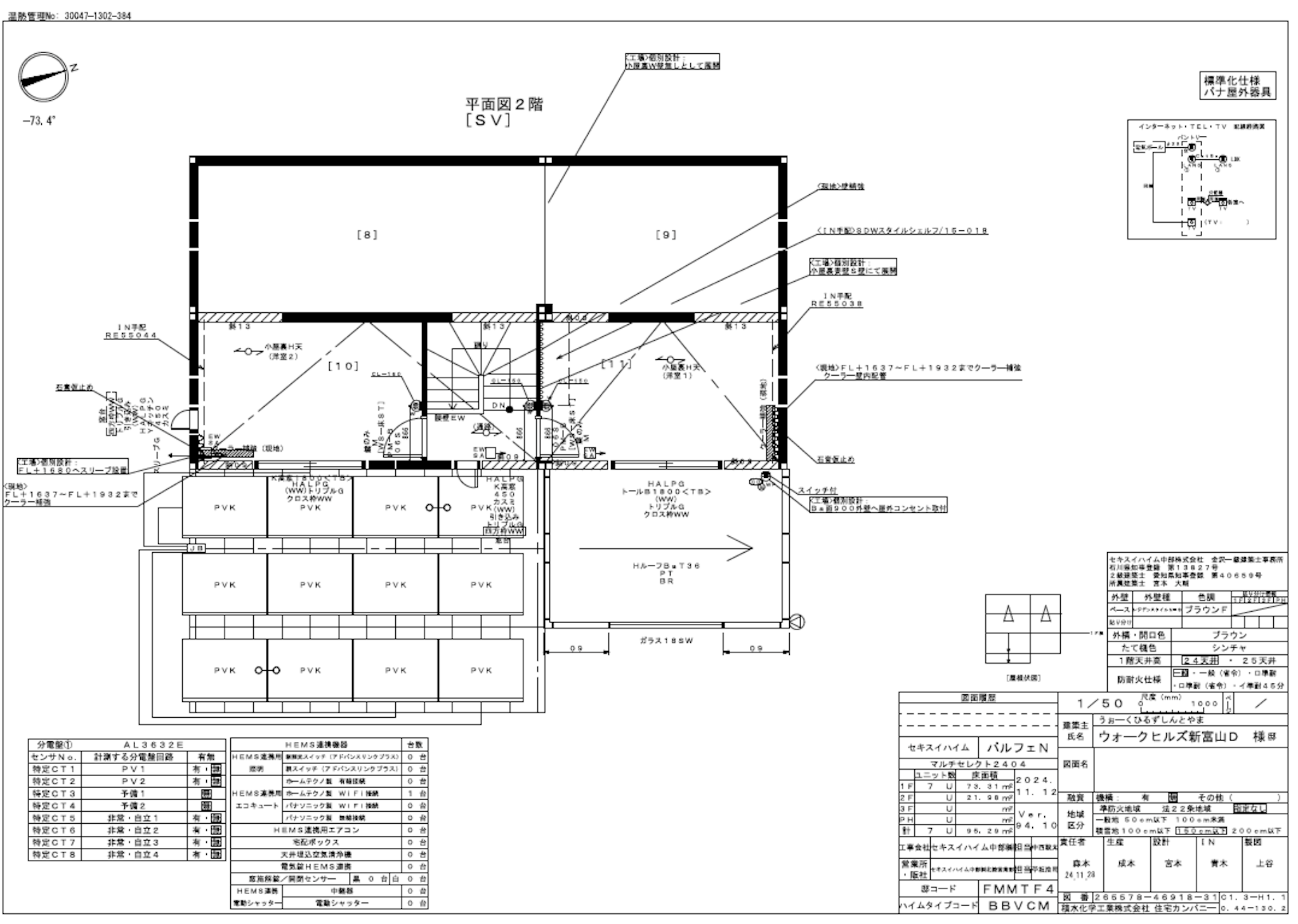
面積:敷地面積 226.66㎡(68.56坪)/延床面積 95.29㎡(28.82坪)
工法:軽量鉄骨ユニット工法
竣工年月:2025年7月
性能:UA値 0.44W/㎡K、C値 0.20㎠/㎡、耐震等級 3
交通:新富山駅より徒歩5分
備考:長期優良住宅

今だけ!デジタルギフト最大3,000円分がもらえる!

モデルハウスを見に行く

間取り図

間取り図

平面図

イメージ画像
イメージ画像
イメージ画像
イメージ画像
イメージ画像
information

モデルハウス基本情報

会社名 セキスイハイム中部株式会社 北陸営業部
物件名 セキスイハイム中部
場所 富山県富山市下新北町
公開日 2026-03-03〜
TEL 0120-023-816
access

アクセス

Pin 富山県富山市下新北町