| 価格(万円) | 3,780万円 |
|---|---|
| 物件所在地 | 富山県射水市戸破1549-5 |
| 間取り | 3LDK+S |
| 土地面積 | 224.59 〜 225.41m² (67.93 〜 68.18坪) |
| 建物面積 | 93.15 〜 94.11m² (28.17 〜 28.46坪) |
| 校区 | 歌の森小学校 / 小杉中学校 |
| 建築年月 | 2026年3月予定 |
周辺環境の良い人気の歌の森地域に、分譲住宅が2棟完成予定。
A棟 右側(黒と白の建物)
B棟 左側(アイボリーの建物)
※現在建築中の物件となります。
3月完成を予定しておりますが、天候不良等により前後する可能性があります。
ご興味のある方は、お気軽にお問い合わせください。
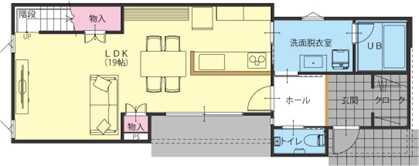
間取り図
A棟1階
A棟2階
B棟1階
B棟2階
富山県射水市戸破1549-5
| 物件名 | スクールタウン分譲住宅 |
|---|---|
| 交通 | 小杉駅より徒歩20分 |
| 総戸数/販売戸数 | 2 / 2 |
| 用途地域 | 第一種中高層住居専用地域 |
| 地目 | 宅地 |
| 私道負担・道路 | 無 |
| 構造・工法 | 木造軸組工法 |
| 建ぺい率・容積率 | 60・200 |
| 性能 | オール電化 |
| 駐車場 | 駐車場2台可, カーポート |
| 電気/ガス | オール電化/ |
| キッチン | システムキッチン, IHクッキングヒーター, 食器洗乾燥機 |
| 飲水/排水 | 市営水道 / 公共下水道 |
| 建物の特徴 | バリアフリー, サンルームあり |
| 入居時期 | 要相談 |
| 土地の権利形態 | 所有権 |
| 取引態様 | 売買・売主 |
| 現況 | 建築中 |
| 情報提供日 | 2025年11月19日 |
|---|---|
| 取引条件有効期限 |
| 会社名 | 永森建設工業株式会社 |
|---|---|
| 住所 | 富山県射水市三ケ3973 |
| TEL | 0766-55-3933 |
| 免許/所属団体/資格 | 建設業/富山県知事許可(特-6)第9157号、宅建業/宅建業知事(8)第2065号 |
| 営業時間 | 9:00~17:00 |
| 定休日 | 無休 |
リクア建築設計事務所/永森建設工業株式会社
リクア建築設計事務所/永森建設工業株式会社