福井・石川・富山ではじめて家を建てる人のための、住宅情報サイト
掲載住宅会社 589 住宅イベント 344 建築実例 928 住宅写真 13,295

家づくりナビ

石川

不動産ひろばの国土興建

建築条件なし 2026年6月以降 現状渡し

建物付き
建物1 木造2階建て   計258.66㎡ 78.24坪
建物2 未登記 鉄骨造  102.31㎡ 30.94坪

キーワード

土地情報を問い合わせる
check

周辺情報・
おすすめポイント

  • 現地写真

  • 現地写真

  • 現地写真

  • 図面

access

アクセス

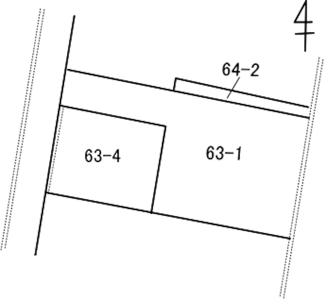
Pin 石川県野々市市住吉町63-4,63-1,64-2
information

土地基本情報

物件名 野々市市住吉町の土地 建物付き
住所 石川県野々市市住吉町63-4,63-1,64-2
交通

北鉄バス 菅原小学校前 徒歩2分

総区画数 1区画
販売区画数 1区画
土地面積 788.52m² (238.53坪)
地目 宅地
用途地域 準工業
建ぺい率・容積率 建ぺい率 60%・容積率 200%
私道負担・道路 ●西向き 約4.8m 間口 約18.3m 
造成完了時期 - 
価格(万円) 4,800万円
取引態様 一般
建築条件 なし
土地状況 古家あり
備考・特記事項

建築条件なし 
建物付き 2026年6月以降 現状渡し
建物1 木造2階建て   計258.66㎡ 78.24坪
建物2 未登記 鉄骨造  102.31㎡ 30.94坪
〔参考解体見積金額有〕

情報提供日 2026年02月06日
更新予定日 2027年12月31日
取引条件有効期限 2027年12月31日
土地情報を問い合わせる
builder

会社情報

会社名 不動産ひろばの国土興建
住所 石川県野々市市押野4丁目197-1
TEL 076-246-5588
免許/所属団体/資格

宅建業/石川県知事(9)2405号、建設業/石川県知事許可(般17)8400号

公式HP http://www.k117.com/kokudo/index.htm
営業時間 9:00~17:00
定休日 水曜、日曜、祝日、年末年始