福井・石川・富山ではじめて家を建てる人のための、住宅情報サイト
掲載住宅会社 589 住宅イベント 321 建築実例 928 住宅写真 13,308

家づくりナビ

石川

株式会社クラスコGO売買・県庁前店

【2026年5月完成予定】リビングの畳コーナーで、家族の時間をゆるやかに。デザイン壁が映える一邸

2026年5月完成予定の新築戸建です!

価格(万円) 3,290万円
物件所在地 石川県金沢市疋田2丁目84-3
間取り 3SLDK
土地面積 123.7m² (37.41坪)
建物面積 115.1m² (34.81坪)
校区 千坂小学校 / 北鳴中学校
建築年月 2026年5月予定

「リビングの畳コーナーで、家族の時間をゆるやかに。デザイン壁が映える一邸」
金沢市疋田に、間取りが異なる2棟の新築住宅が誕生。スタイリッシュなモルタル風の壁に、ふっと心が和む畳コーナー。小学校の通学は徒歩5分の近さで、共働きのご家庭にも心強い立地です。個性が光る一点ものの建売住宅で、あなただけの新しい暮らしをここから始めませんか。

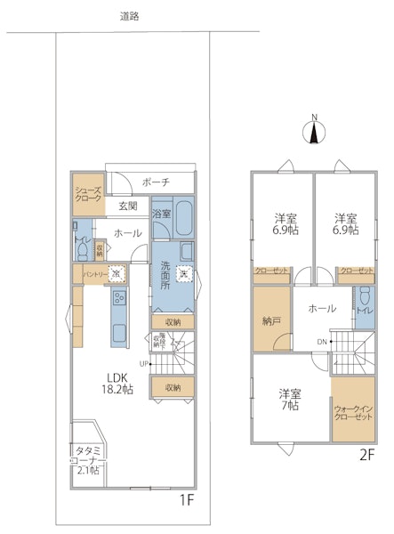
間取り図

access

アクセス

Pin 石川県金沢市疋田2丁目84-3
information

基本情報

物件名 「クラスコ建売住宅」金沢市疋田2丁目A棟 戸建
交通

北鉄バス「疋田」バス停より徒歩2分

総戸数/販売戸数 1 / 1
用途地域 第一種住居地域
地目 宅地
私道負担・道路 負担なし・幅員 : 北側 約 6.01m 公道、間口:約 6.21m
構造・工法 木造ガルバリウム鋼板立平葺2階建
建ぺい率・容積率 建蔽率60%/容積率200%
駐車場 駐車場2台可
電気/ガス 北陸電力/プロパン
キッチン システムキッチン, IHクッキングヒーター, 食器洗乾燥機
飲水/排水 公営 / 公共下水
建物の特徴 収納が多い, ウオークインクローゼット, シューズインクローゼット
備考・特記事項

・令和8年5月完成予定
・玄関スマートキーで楽々開錠
・樹脂サッシ仕様で断熱性も高い
・グループ会社施工物件なので入居後点検までついて安心♪
※建物登記費用は買主様負担となります。

入居時期 要相談
土地の権利形態 所有権
取引態様 専任媒介
情報提供日 2026年02月09日
取引条件有効期限 2027年02月09日
builder

会社情報

会社名 株式会社クラスコ 県庁前店
住所 石川県金沢市藤江北4-274
TEL 076-222-1100
免許/所属団体/資格

国土交通大臣免許(3)第8818号、(公社)石川県宅地建物取引業協会会員、全国賃貸管理ビジネス協会会員、(公財)日本賃貸住宅管理協会会員、北陸不動産公正取引協議会加盟、(公社)全国宅地建物取引業保証協会

営業時間 9:30~17:30
定休日 水曜、祝日(1〜3月除く)、GW、夏期、年末年始
case

この会社の
他の建売・中古物件を見る

建売・中古物件をもっと見る
物件情報を問い合わせる