福井・石川・富山ではじめて家を建てる人のための、住宅情報サイト
掲載住宅会社 583 住宅イベント 311 建築実例 882 住宅写真 12,725

家づくりナビ

石川

株式会社ブレーン

陽だまりで始まる心地よい毎日。南向きの1階和室は陽だまり空間(^^♪ 上諸江駅まで徒歩圏内。毎日の暮らしがもっと軽やかに。 諸江町小学校まで徒歩10分。毎日の通学が安心です

外観_北東側

価格(万円) 700万円
物件所在地 石川県金沢市沖町
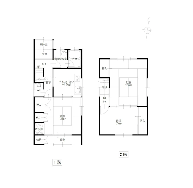
間取り 3K
土地面積 99.68m² (30.15坪)
建物面積 74.52m² (22.54坪)
校区 諸江町小学校 / 浅野川中学校
建築年月 1982年12月 (築43年4ヶ月)

間取り図

access

アクセス

Pin 石川県金沢市沖町
information

基本情報

物件名 沖町中古一戸建て
交通

北陸鉄道浅野川線 上諸江駅 徒歩5分

私道負担・道路 北側道路幅員2.4m、南側道路幅員2.5m
構造・工法 木造
建ぺい率・容積率 建蔽率60%、容積率200%
電気/ガス /個別プロパンガス
飲水/排水 公営水道 / 公共下水
備考・特記事項

・図面と現況が異なる場合は、現況優先とします。
・市街化調整区域 ※再建築可
・※1 北側道路・南側道路ともに建築基準法第42条2項道路(※町会管理道路)
・※2 現在、駐車スペースはありませんが、南側の庭を造成して1台分(縦列駐車、軽自動車、小型自動車に限る)確保することは可能です。
・建物再建築の際は、道路中心線から2mの敷地後退(セットバック)が必要となります。
 その場合、セットバック後の宅地有効面積は、約90㎡(27坪)となります。

入居時期 要相談
土地の権利形態 所有権
取引態様 仲介
情報提供日 2026年02月26日
取引条件有効期限
builder

会社情報

会社名 株式会社ブレーン
住所 石川県金沢市桜田町1丁目26番地
TEL 076-222-8183
免許/所属団体/資格

宅建業免許/石川県知事許可(7)第3367号

営業時間 9:00〜18:00
定休日 水曜
case

この会社の
他の建売・中古物件を見る

建売・中古物件をもっと見る
物件情報を問い合わせる