【A棟:画像左側】シンプルなフラットデザインに自然な風合いをプラスしたホワイトカラーをベースに塗壁材をアクセントに仕上げたおしゃれでクールモダンな外観デザインです。
【B棟:画像右側】グレージュの塗壁に天然木のアクセントを組み合わせたシンプルながらも奥行きを感じさせる外観デザインです。
| 価格(万円) | 3,590万円 |
|---|---|
| 物件所在地 | 石川県金沢市上荒屋2丁目133番1、2 |
| 間取り | 3LDK+ファミリークローゼット+シューズクローク+ウォークインクローゼット |
| 土地面積 | 115.11m² (34.82坪) |
| 建物面積 | 101.22 〜 103.33m² (30.61 〜 31.25坪) |
| 校区 | 三和小学校 / 西南部中学校 |
| 建築年月 | 2026年7月予定 |
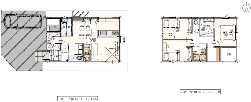
【A棟】玄関から2WAYでLDKへ入ることができる、快適な動線計画の住まい♪
【B棟】玄関からシューズクローク、ファミリークローゼット、LDKへの動線で自然と「片付く習慣」が身に付く家♪
■ 吹抜があることで明るく開放的なLDKになり、帖数以上の広がりを感じる【吹抜設計】
■ 樹脂フレームとLow-E複層ガラスで国内最高レベルの断熱性能を実現した【高性能樹脂サッシAPW330】
■ ウィルス、菌、汚れ、匂いを除去するエアーウォッシュ機能付きの【エアーウォッシュフローリング】
■ 大地震が来ても安心して住み続けられる強さと安心を備えた住まいを実現【耐震等級3相当】
■ 玄関ドアのノブに触れるだけで簡単開閉が可能な【ポケットキー】
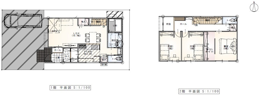
間取り図
【A棟】玄関から2WAYでLDKへ入ることができる、快適な動線計画が魅力の住まい。
【B棟】玄関からシューズクローク、ファミリークローゼット、LDKへの動線で自然と「片付く習慣」が身に付く住まい。
区画図
前面に車3台分の駐車スペースを確保しています。
石川県金沢市上荒屋2丁目133番1、2
| 物件名 | 金沢市上荒屋2丁目分譲住宅AB棟 |
|---|---|
| 交通 | IRいしかわ鉄道 野々市駅/1300m(徒歩17分) |
| 総戸数/販売戸数 | 2戸 / 2戸 |
| 用途地域 | 第一種中高層住居専用地域 |
| 地目 | 宅地 |
| 私道負担・道路 | 私道負担:なし 道路幅:4.88m(西側)5.95m(南側) |
| 構造・工法 | 木造在来工法 |
| 建ぺい率・容積率 | 建ぺい率:60% 容積率:200% |
| 性能 | オール電化, 省エネ給湯器, 24時間換気システム, ZEH住宅 |
| 駐車場 | 駐車場3台可 |
| 電気/ガス | 北陸電力(他の小売電力事業者の選択も可能です。)/オール電化(エコキュート仕様) |
| キッチン | システムキッチン, 対面式キッチン, パントリー, IHクッキングヒーター, 食器洗乾燥機 |
| 飲水/排水 | 市営水道 / 公共下水道 |
| 建物の特徴 | 収納が多い, 家事ラク動線, ウオークインクローゼット, シューズインクローゼット, 浴室乾燥機, 書斎・ワークスペース |
| その他 | 仲介手数料なし |
| 販売スケジュール | 販売中 |
| 入居時期 | 要相談 |
| 土地の権利形態 | 所有権 |
| 取引態様 | 売主 |
| 現況 | 建築工事中 |
| 建物状況 | 建築工事中 |
| 情報提供日 | 2026年04月25日 |
|---|---|
| 取引条件有効期限 | 2026年05月09日 |
| 会社名 | 株式会社リビングスペース |
|---|---|
| 住所 | 石川県野々市市御経塚2丁目260 |
| TEL | 076-259-6718 |
| 免許/所属団体/資格 | 宅建業免許/国土交通大臣(2)第9771号、建設業許可/国土交通大臣(般-3)第28245号 |
| 営業時間 | 9:00~18:00 |
| 定休日 | 日曜 |
リビングスペース
リビングスペース
リビングスペース