| 価格(万円) | 3,298万円 |
|---|---|
| 物件所在地 | 石川県金沢市みずき四丁目186番地 |
| 間取り | 4LDK+S |
| 土地面積 | 214.07m² (64.75坪) |
| 建物面積 | 151.11m² (45.71坪) |
| 校区 | 大浦小学校 / 浅野川中学校 |
| 建築年月 | 2004年8月 (築21年5ヶ月) |
【三井ホームの安心施工】
■1年間の瑕疵担保保証付き
■高耐久・高耐震の安心な住まい
■45坪の広々間取り!
■ 駐車スペース2台
■ビルトインガレージ
■土間収納あり(自転車収納可能)
■小屋裏収納充実で収納多数!
■ 大浦小学校まで徒歩16分!
■ローソン金沢木越町店まで徒歩5分!
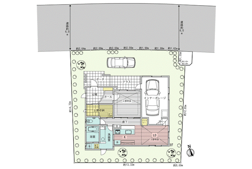
間取り図
ローソン金沢木越町店まで徒歩5分!
大浦小学校まで1251m
浅野川中学校まで3599m
石川県金沢市みずき四丁目186番地
| 物件名 | 【金沢市みずき】インナーガレージ付き4LDK+S |
|---|---|
| 交通 | 北陸鉄道浅野川線蚊爪駅 徒歩28分 |
| 私道負担・道路 | 無、北側 6.00m 公道 接面14.20m |
| 構造・工法 | 木造 地上2階建て 2×4工法 |
| 建ぺい率・容積率 | 50% / 80% |
| 性能 | オール電化 |
| 駐車場 | 駐車場2台可, インナーガレージ |
| 電気/ガス | オール電化/ |
| キッチン | 対面式キッチン, パントリー, IHクッキングヒーター |
| 飲水/排水 | 公営水道 / 公共下水 |
| 建物の特徴 | 収納が多い, 家事ラク動線, シューズインクローゼット, 浴室乾燥機, ウッドデッキ・テラス, ルーフバルコニー, 中庭あり |
| 備考・特記事項 | 壁面後退有 高さ最高限度有 |
| 入居時期 | 要相談 |
| 土地の権利形態 | 所有権 |
| 取引態様 | 専任媒介 |
| 建物状況 | 空室 |
| 施工会社 | 三井ホーム北新越株式会社 |
| 情報提供日 | 2025年11月27日 |
|---|---|
| 取引条件有効期限 | 2026年03月31日 |
| 会社名 | 三井ホーム北新越株式会社 北陸本社 |
|---|---|
| 住所 | 石川県金沢市鞍月東1丁目4番地 |
| TEL | 0120-81-2431 |
| 免許/所属団体/資格 | 建設業の許可 国土交通大臣許可(特-5)第23004号
|
| 営業時間 | 10:00~19:00 |
| 定休日 | 火・水曜、年末年始 |